あきる野市新築|あきる野市中古|あきる野市売地|あきる野市条件付|日の出町新築|日の出町中古|日の出町売地|日の出町条件付|昭島市新築|昭島市中古|昭島市売地|昭島市条件付|福生市新築|福生市中古|福生市売地|福生市条件付
あきる野市建築条件付売地【仲介手数料無料】物件情報一覧
| 写真 物件番号 |
駅名 駅名2 |
住所 | 価格 | 土地面積 | 用途地域 | 現況 | 詳細 | 画像 | Bt5208 |
東秋留駅 秋留 |
あきる野市秋留5-12-4 | 1,720万円 | 135.06m2 | 第一種低層 | 更地 |
|
|
|---|---|---|---|---|---|---|---|---|
| 仲介手数料約576,000円がカズハウジングなら無料です。 あきる野市秋留5 条件付き売地10(全10区画) 綺麗に整備された区画整理内の分譲地 接道も5M〜6M道路の裏道 交通量もほとんど有りません 近隣には公園、スーパー(いなげや・アルプス)生活用品はドラッグストアーが全て徒歩圏内 まだまだ回りには畑が多く緑に囲まれています 建築は専属の設計士と共にご家族でお好きな間取りを打ち合わせして下さい 建物は1Fの柱は全て檜の『無垢材』を使用とするこだわりの工務店施工 設備関係のカラー選択も可能 ※都市ガスも利用可(別途費用負担有) 建物増坪可 地目の『畑』はお引き渡しまでに『宅地』に変更致します ※参考価格 建物26坪(1460万円) 総額3180万円 |
Bk5175 |
武蔵五日市駅 五日市 |
あきる野市五日市822-1 | 2,450万円 | 130.14m2 | 第一種低層 | 建設中 |
|
|
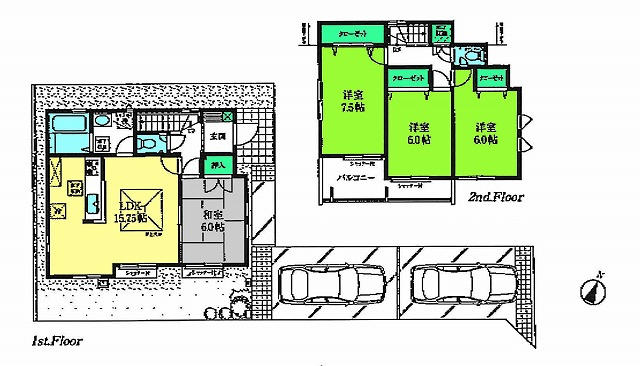
| 仲介手数料約795,000円がカズハウジングなら無料です。 あきる野市五日市 新築戸建3(全6棟) 五日市線『武蔵増戸駅』徒歩10分 五日市小学校迄徒歩4分 五日市中学校迄徒歩2分 『スーパーいなげや』迄徒歩3分 接道道路も裏道の為交通量もほとんど有りません 建物設備:全サッシ網戸付(FIX除く) 1F・2Fウォシュレットトイレ TVモニターホン 浴室暖房換気乾燥機 バリアフリー設計 全居室ペアガラス 人口大理石カウンターキッチン 大型収納下駄箱(ミラー付) フラット35S対応 ※【耐震等級『3』】 【省エネルギー対策『4』】 【劣化対策等級『3』】 【維持管理対策等級『3』】 ※地目はお引き渡しまでに『宅地』に変更致します |
Bk4138 |
武蔵五日市駅 留原 |
あきる野市留原794-4 | 2,480万円 | 233.11m2 | 第一種低層 | 建設中 |
|
|
| 仲介手数料約804,000円がカズハウジングなら無料です。 あきる野市留原 新築戸建A(全2区画) 地元工務店施工の木の温もりを感じる家 近くに秋川の流れる緑&自然豊かでとってものどかな住環境がGOOD 敷地面積は約70.5坪の敷地延長の地型とはいえ、カースペースは3m幅でラクラク2台駐車可能 一帯は閑静な住宅街ですが夏はバーベキュー場も近くにありにぎやかになります 建物設備・仕様:屋根材(ガルバリウム鋼板)、1階WPC加工(キズが付きにくい)フロア使用、クロス下地材(ハイクリーンボード)使用、システムキッチン(IHクッキングヒーター&食洗機)、換気乾燥機付浴室、三面鏡付化粧台、全室照明器具&網戸付etc 前面道路は行き止まり道路なので周辺居住者以外の車は通りません B区画はこちら>> |
||||||||





